01
源头厂家
Source manufacturer皇冠hga登陆是集科研、开发、生产、销售振动机械为一体的新型企业。公司始终坚持“科技为先、追求品质、周到服务、精益求精”的质量方针。
分类:筛分设备 ——
型号说明:

工作原理和结构特点:
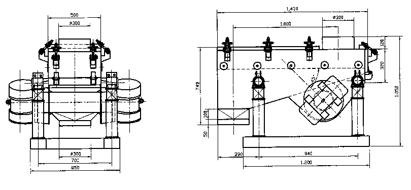
本系列煤粉筛由筛箱、密封罩、防爆振动电机、底架等组成。筛箱依靠两台相同的振动电机作反方向自同步旋转,使整个参振部件做直线振动。煤粉从入料口落入筛箱后,迅速松散、透筛、木屑、纤维等杂物留在筛网上部,定期由人工清理。
煤粉筛采用高性能的防爆振动电机激振,调整振动电机激振力的大小,可以改变筛机振动的振幅大小。
筛机设有隔振系统,煤粉筛运行时动负荷较小。筛面采用不锈钢丝编织筛网,使用张紧钩 压紧,安装方便。
根据用户要求和现场环境,本公司可为用户设计制造其他不同规格和尺寸的煤粉筛。
规格型号及技术参数:

外形尺寸:

HSZMTO200 煤粉筛

HSZM50140 煤粉筛

游乐设备

电力行业

冶金铸造

印刷设备

装备制造

立体仓储

中转料场

路桥预制




相关推荐
友情链接:
版权所有 皇冠hga登陆 备案号:豫ICP备12003707号-1
15836048801
扫一扫 关注我们