分类:给料设备 ——
用途:
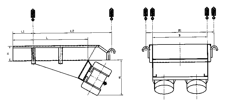
HSG系列振动给料机采用两台振动电机做为激振源,在过共振状态下工作, 与电磁振动给料机和摆式给料机比较,具有结构简单、重量轻、噪声低、工作可靠、给料能力大、安装维护方便等优点。适用于把块状、颗料状或粉状物料从贮料仓均匀送到受料装置中,广泛应用冶金、矿山、煤炭、建材、化工、轻工等行业。
型号说明:

工作原理与结构特点:
HSY系列圆振筛是利用普通电机外联接激振器,使筛体沿激振力方向作周期性往复振动,物料在筛面上连续 作圆运动,从而达到筛分目的。
HSY系列圆振筛由激振器、筛体、筛网、减振装置和底架组成,筛机侧板采用**钢板制造而成,侧板与横梁、激振器底座采用高强度螺栓或环槽铆钉连接,结构合理,坚固耐用。
安装与调试:
HSG系列给料机利用减振装置为吊挂式安装均。空运转试车前,应检查各部位螺栓,特别是振动电机的地脚 螺栓是否紧固,连续运转4小时后各部位连接螺栓要重新紧固一次,一周内再反复紧固2-3次。
试车时应检查两台振动电机的转向,应使其旋转方向相反。
空运转试车时,检查给料机运转情况是否平稳,并注意振动电机轴承的温升情况,连续运转4小时后,轴承高温度不得超过75℃。
给料机在运输。存放时,振动电机应遮盖严实,防止雨雪浸蚀。
规格型号及技术参数:

外形尺寸:







游乐设备

电力行业

冶金铸造

印刷设备

装备制造

立体仓储

中转料场

路桥预制




相关推荐
友情链接:
版权所有 皇冠hga登陆 备案号:豫ICP备12003707号-1
15836048801
扫一扫 关注我们